


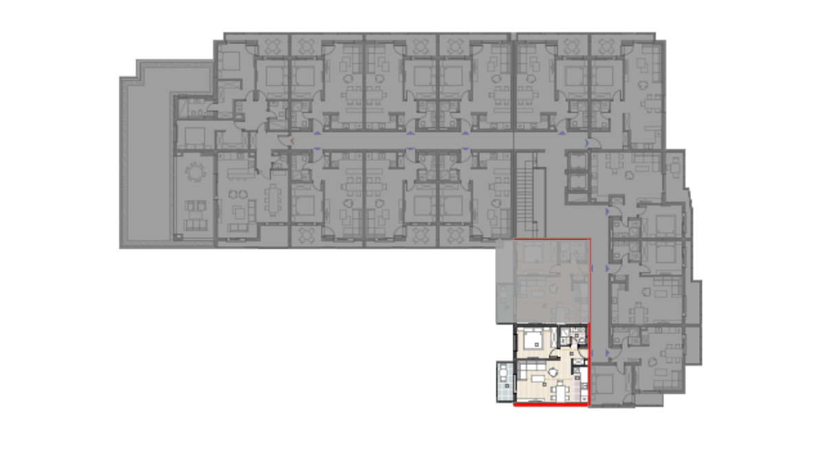
Apartment A-J12 Floor 5
Details
Area size: 45.88 m2 Bedrooms: 1 Bathrooms: 1 Terrace: 1 Parking space: 1 View: SeaFeatures
Floor plans
V Bedrooms: 1 Bathrooms: 1

Apartment A-J12 V, fifth floor, with an area of 45.88m2, has been carefully designed to provide comfort and enjoyment in everyday life. It consists of a spacious living area, one bedroom, bathroom and terrace offering a sea view.
