


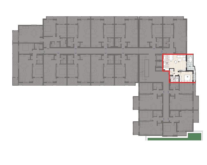
Stan a-J10 SPRAT 3
Detalji
Veličina područja: 55.67 m2 Sobe: 1 Kupatila: 1 Terrace: 1 Parking space: 1 View: RumijaFunkcije
Osnove spratova
In total, there are 4 apartments of this type in Lamela A. Sobe: 1 Kupatila: 1

Apartment A-J10, with an area of 55.67 m2, has been carefully designed to provide comfort and enjoyment in everyday life. It consists of a spacious living area, one bedroom, bathroom and terrace offering a view towards mountain Rumija.
