


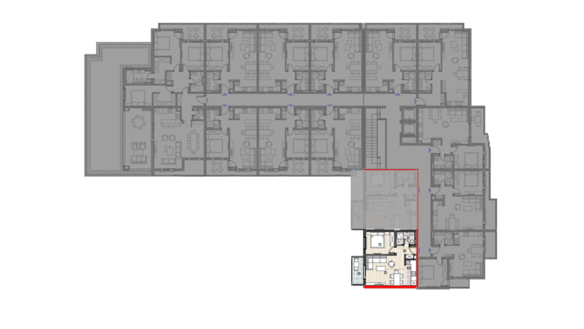
Stan A-J13 sprat 3
Detalji
Veličina područja: 45.88 m2 Sobe: 1 Kupatila: 1 Terrace: 1 Parking space: 1 View: SeaFunkcije
Osnove spratova
In total, there are 4 apartments of this type in Lamela A. Sobe: 1 Kupatila: 1

Apartment A-J13, with an area of 45.88m2, has been carefully designed to provide comfort and enjoyment in everyday life. It consists of a spacious living area, one bedroom, bathroom and terrace offering a sea view.
