


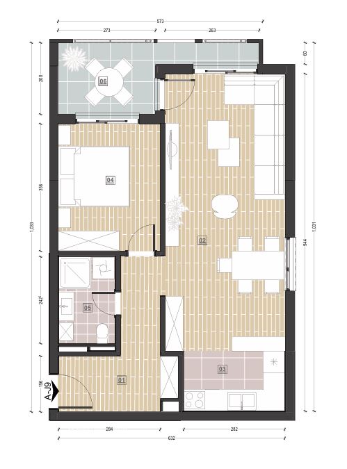
Stan a-J9 SPRAT 3
Detalji
Veličina područja: 60.91 m2 Sobe: 1 Kupatila: 1 Terrace: 1 Parking space: 1 View: SutomoreFunkcije
Osnove spratova
In total, there are 4 apartments of this type in Lamela A. Sobe: 1 Kupatila: 1

Apartment A-J9, with an area of 60.91 m², has been carefully designed to provide comfort enjoyment in everyday life. It consists of a spacious living area, one bedroom, bathroom and terrace offering a view towards Sutomore.
